Inmomart - Promociones inmobiliarias

español français

RESIDENCIAL JORGE

> PEÑISCOLA

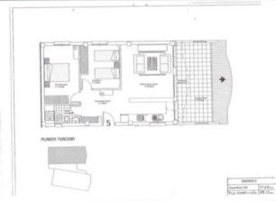
Promoción de apartamentos en venta - Atalayas - Peñiscola.

Residencial con  unas vistas privilegiadas a toda la bahía de Peñiscola e incluso el delta del Ebro, con piscina comunitaria, a tan sólo 700 metros de la ciudad fortificada. Viviendas de alta calidad de 2 y 3 habitaciones dobles,  1 baño, cocina, comedor, terraza de 20 m², garaje opcional.
A/A por conductos con bomba de calor, suelos gres, ascensor, armarios, puerta blindada en aluminio, video portero, vidrios dobles, carpintería exterior PVC.
Exterior, orientación este-sur, soleado.

Disponibilidad

Seleccione en el alzado de la izquierda la planta que desea consultar

Galería Fotográfica

Solicita información Memoria de calidades
Nº EEAT-233-CS del registro de Empresas Explotadoras de Apartamentos Turísticos.